Apartment BN863 Bonn Bad Godesberg 95qm Penthouse Dachgarten
Apartment im Überblick
Alloggia Sternekategorie
Bonn | Deutschland
Unterkunftsart: Ferienwohnung
95
6
2
500 €
Monatsmiete €: 3870 €
Wohnraum-Identitätsnummer: 002-3-0014842-22
Art der Nutzung
- Wohnen auf Zeit ✅
- Ersatzwohnung ✅
- Ferienwohnung ✅
Zielgruppen
- Geschäftsreisende und Projektmitarbeiter (Pendler, Monteure, Expats, temporäre Fachkräfte)
- Familien und Privatpersonen in Übergangssituationen (Sanierung, Umzug, Relocation, Langzeitaufenthalt, Notfall)
Buchungszeitraum 2 - 365 Tage
Kostenlose Stornierung bis keine Tage vor Check-in
Stornierungsgebühr 100 % vom Vertragswert
Beschreibung
Objektbeschreibung
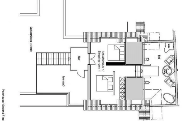
Das exklusive Penthouse „Alexandra“ in Bonn bietet 95 m² Wohnfläche und ist ideal für anspruchsvolle Gäste. Die klimaneutrale und CO²-freie Wohnung verfügt über zwei Schlafzimmer, ein großzügiges Wohnzimmer mit voll ausgestatteter Einbauküche und Essbereich sowie ein luxuriöses Bad mit Doppelwaschbecken, Bidet, Dusche und Badewanne. Ein Highlight ist die 140 m² große Sonnenterrasse mit Dachgarten, von der aus man einen Panoramablick auf den Post-Tower, die Godesburg, den Petersberg, den Drachenfels, das Siebengebirge und den 300 m entfernten Annaberg genießt. Die Wohnung ist mit Fußbodenheizung ...
Ausstattung
Schlafzimmer 1 & 2:
Doppelbetten
Kleiderschränke
Ruhige Lage mit viel Tageslicht
Wohnzimmer mit Einbauküche:
Voll ausgestattete Küche (Herd, Backofen, Geschirrspüler, Kühlschrank, Kochutensilien)
Essbereich
Gemütliche Sitzgelegenheiten
Badezimmer:
Zwei Waschbecken
Bidet
Große Badewanne
Separate Dusche
Handtuchheizkörper
Außenbereich:
140 m² Dachgarten und große Südterrasse
Sitzgelegenheiten und Grillmöglichkeit
Panoramablick auf Post-Tower, Godesburg und Siebengebirge
Technik & Komfort:
WLAN (100 MBit Download / 7,5 MBit ...
Lage
Das Penthouse befindet sich in ruhiger Lage gegenüber einer Bio-Bäckerei und einem Bio-Supermarkt. Weitere Supermärkte, Restaurants, Apotheke, Ärzte und Freizeitmöglichkeiten wie Freibad und Fußballplatz sind fußläufig erreichbar. Eine Bushaltestelle liegt 50 m entfernt, die Stadtbahn (direkte Verbindung nach Köln) erreicht man in 600 m. Der Naturpark ist nur 300 m entfernt, der Rhein und die Rheinaue sind 1,4 km entfernt. Die UNO, WCCB/Unfccc, Bonn Zentrum, Bad Godesberg und der Hauptbahnhof sind schnell erreichbar.
Sonstiges
Kostenfreie öffentliche Parkplätze direkt vor dem Haus
Klimaneutrales „Green Building“ mit Wärmepumpe, Scheitholzkessel und Solar-Thermieanlage
KfW46-Energieeffizienzklasse A durch Vollwärmeschutz
CO²-freier Strom
Nutzung von Regenwasser für WC-Spülung und Gartenbewässerung
Klimaanlage gegen Gebühr nutzbar
Ausstattungsdetails
Wohnbereich
- ✅ Essbereich
- ✅ Sofagruppe
- ✅ Schlafsofa
- ✅ Sitzecke
- ✅ Internat. TV
- ✅ Kabel-TV
- ✅ Stereoanlage / CD
Küche
- ✅ Herd
- ✅ Backofen
- ✅ Kaffeemaschine
- ✅ Kühlschrank
- ✅ Gefrierfach
- ✅ Wasserkocher
- ✅ Mikrowelle
- ✅ Kaffee- u. Teezubehör
- ✅ Essbereich
- ✅ Spülmaschine
Bad
- ✅ Handtücher
- ✅ Toilettenpapier
- ✅ Badewanne
- ✅ Dusche/Duschkombi
- ✅ Föhn
- ✅ WC
- ✅ Tageslicht-Bad
Schlafzimmer
- ✅ Einzelbetten
- ✅ Doppelbett
- ✅ Kleiderschrank
- ✅ Frische Bettwäsche
- ✅ Kommoden
- ✅ Nachttische
Flur
- ✅ Spiegel
Außenbereich
- ✅ Terrasse / Balkon
- ✅ Öffentl. Parkplatz
Sonstiges
- ✅ WLAN Internet
- ✅ Waschmaschine
- ✅ Trockner
- ✅ Bügelausstattung
- ✅ Kinderbett
- ✅ Hochstuhl
- ✅ Reinigungsmittel
- ✅ Rauchmelder
- ✅ Allergikerfreundlich
- ✅ Langzeitmieter
Vermieter
Fragen an den Vermieter
Andere Apartments des Vermieters
BN862 Wachtberg-Niederbachem bei Bonn 75qm EG Wohnfläche qm: 79 Personen 7BN864 Bonn Bad Godesberg 105qm 9 Personen Wohnfläche qm: 105 Personen 9
BN865 Bonn Bad Godesberg 35qm 1.OG Balkon Wohnfläche qm: 35 Personen 4
BN866 Bonn Bad Godesberg 30qm 1.OG Waschmaschine Wohnfläche qm: 30 Personen 4
BN867 Bornheim bei Bonn Hausboot 20qm Rhein Wohnfläche qm: 20 Personen 4
Belegungskalender
- MO
- DI
- MI
- DO
- FR
- SA
- SO
- 26
- 27
- 28
- 29
- 30
- 31
- 1
- 2
- 3
- 4
- 5
- 6
- 7
- 8
- 9
- 10
- 11
- 12
- 13
- 14
- 15
- 16
- 17
- 18
- 19
- 20
- 21
- 22
- 23
- 24
- 25
- 26
- 27
- 28
Entfernungen Bonn
- Godesburg 2.67 km
- Alte Rathaus 4.65 km
- Bonn Hauptbahnhof 4.5 km
- Bundesinstitut für Arzneimittel und Medizinprodukte 1.47 km
- Das Beethoven-Haus 4.88 km
- Deutsche Telekom AG 1.4 km
- Helios Kliniken 6.62 km
- Johanniter- Klinik Bonn 1.99 km
- Niedergermanischer Limes: Weltkurturerbe in Bonn 5.62 km
- Sterntor 4.79 km
- Telekom Dome 4.61 km
- UKB Universitätsklinikum Bonn 1.45 km
Bewertungen
| Name | Bewertung |
|---|










